Elmehøjen 26

8200 Aarhus (Aarhus N)

11.200 kr. pr. måned

Ledig fra 1 april 2026

Lejlighed
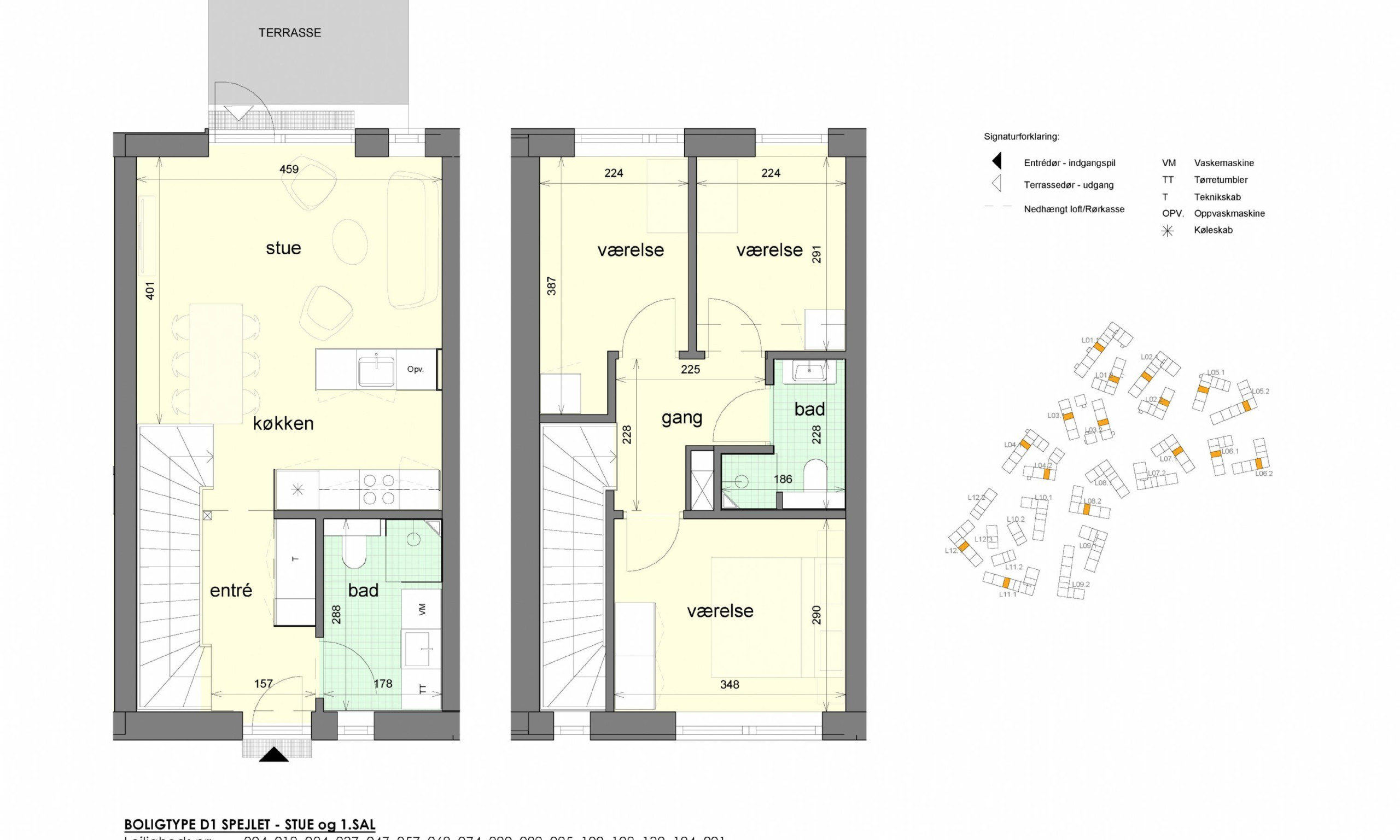
92 m2
4 værelser
3 soveværelser
Del dette hjem

Lejevilkår

Opsigelse Løbende måned + 3 måneder
Yderligere vilkår Se husorden
Overtagelse fra 1 april 2026

Økonomi

Leje pr. md. 11.200 kr.
Depositum 33.600 kr.

Oplysninger om bygningen og området

Fakta

Denne ejendom er en del af
Type
Rækkehus
Størrelse
92 m2
Værelser
4
Parkering
Ja
Husdyr tilladt
Ja
Soveværelser
3

Relaterede ejendomme

Personlig

Vores service, skræddersyet til dine behov

Enkelt

Vores brugervenlige platform gør udlejning enklere end nogensinde før

Hurtigt

Dit perfekte hjem er kun et klik væk

Find dit hjem