Frøstjernestræde 27, st. th.

2640 Storkøbenhavn (Hedehusene)

13.200 kr. pr. måned

Ledig fra 1 juni 2026

Lejlighed
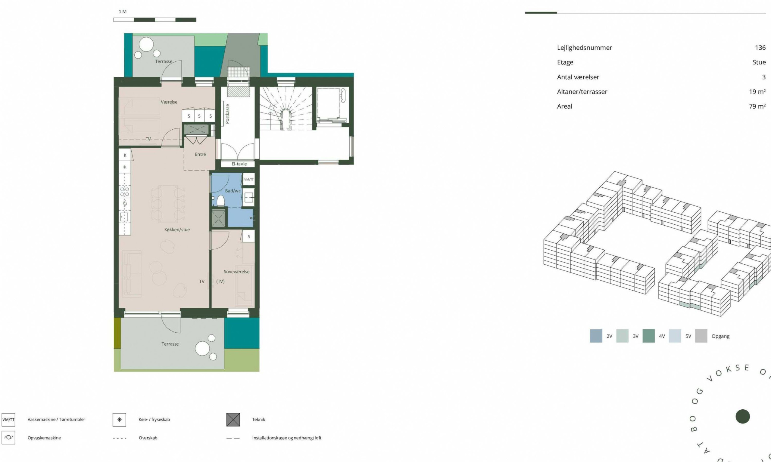
79 m2
3 værelser
2 soveværelser
Del dette hjem

Lejevilkår

Opsigelse Løbende måned + 3 måneder
Yderligere vilkår Se husorden
Overtagelse fra 1 juni 2026

Økonomi

Leje pr. md. 13.200 kr.
A conto varme 600 kr.
A conto vand 300 kr.
Depositum 39.600 kr.
Forudbetalt leje 13.200 kr.

Oplysninger om bygningen og området

3-værelses lejlighed i Birken i Hedehusene

Velkommen til Birken i Hedehusene, moderne lejligheder med plads til både hverdag og samvær.

De 3-værelses lejligheder har åbent køkken med hårde hvidevarer, vaskemaskine og flere med tørretumbler. Planløsningen giver god plads til både ophold og soveværelser og passer perfekt til par og familier.

Ejendommen Ejendommen er moderne og veldrevet med elevator, cykelparkering og grønne fællesområder. Her får du en rolig og behagelig hverdag i gode omgivelser.

Området Birken ligger tæt på Hedehusene Station, hvor lyntoget kører til København på cirka 19 minutter. Der er gode indkøbsmuligheder, parker og stisystemer, som gør det nemt at komme rundt.

Et lyst og funktionelt hjem i et fredeligt kvarter tæt på alt.

Billederne i denne annonce kan være fra lignende enheder og er kun til illustration. De repræsenterer stilen og kvaliteten af de tilgængelige enheder og kan variere i opbygning og detaljer.

Møblerne vist på billederne medfølger ikke. De skal give et indtryk af, hvordan rummet kan indrettes, men er ikke inkluderet i lejemålet.

Fakta

Denne ejendom er en del af
Type
Lejlighed
Størrelse
79 m2
Værelser
3
Parkering
Ja
Husdyr tilladt
Ja
Soveværelser
2
Elevator
Elevator tilgængelig
Personlig

Vores service, skræddersyet til dine behov

Enkelt

Vores brugervenlige platform gør udlejning enklere end nogensinde før

Hurtigt

Dit perfekte hjem er kun et klik væk

Find dit hjem