Frøstjernestræde 7, 3. th.

2640 Storkøbenhavn (Hedehusene)

14.450 kr. pr. måned

Ledig fra 30 april 2026

Lejlighed
106 m2
4 værelser
3 soveværelser
Del dette hjem

Lejevilkår

Opsigelse Løbende måned + 3 måneder
Yderligere vilkår Se husorden
Overtagelse fra 30 april 2026

Økonomi

Leje pr. md. 14.450 kr.
A conto varme 800 kr.
A conto vand 400 kr.
Depositum 43.350 kr.
Forudbetalt leje 14.450 kr.

Oplysninger om bygningen og området

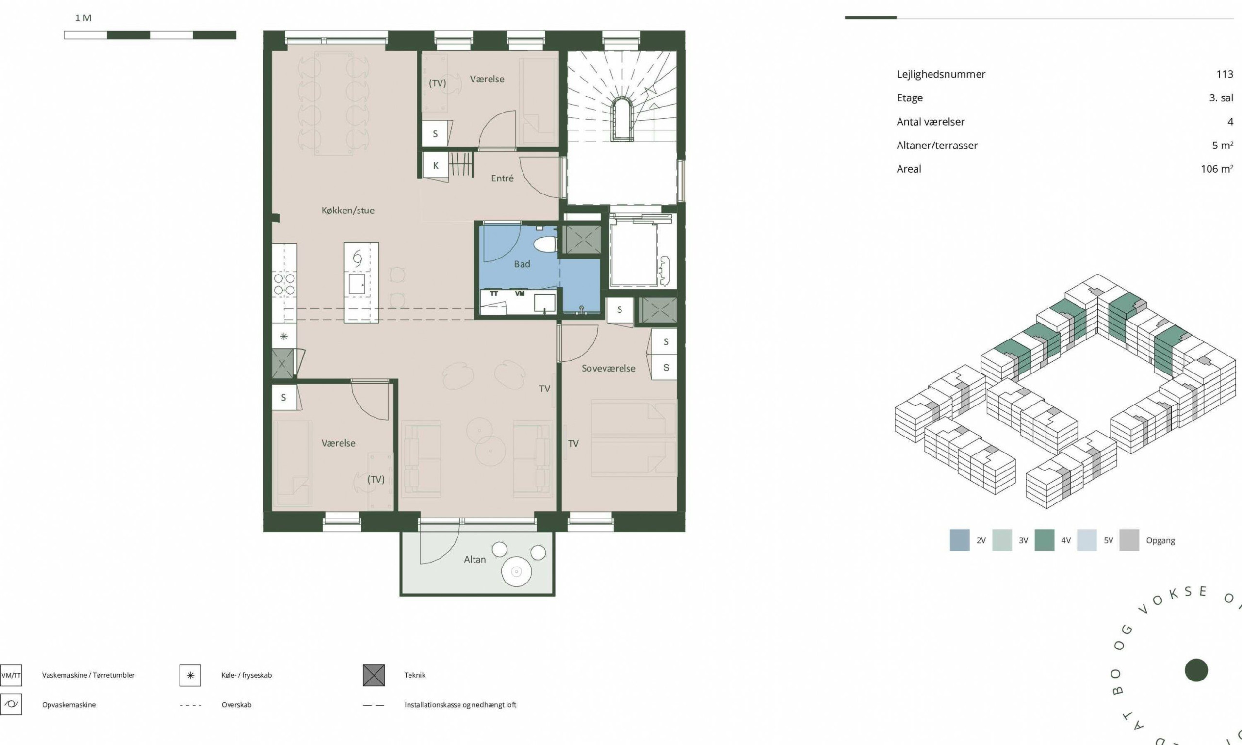
4-værelses lejlighed i Birken i Hedehusene

Velkommen til Birken i Hedehusene, rummelige og moderne lejligheder med fokus på komfort og familieliv.

De 4-værelses lejligheder har moderne køkken med hårde hvidevarer, vaskemaskine og flere med tørretumbler. Planløsningen giver god plads til familieliv og samvær, og flere boliger har altan.

Ejendommen Birken er et moderne byggeri med elevator, cykelparkering og grønne fællesområder. Her får du en tryg og rolig hverdag i gode rammer.

Området Ejendommen ligger centralt i Hedehusene tæt på stationen, hvor lyntoget kører til København på cirka 19 minutter. Der er gode indkøbsmuligheder, grønne områder og et trygt lokalmiljø med kort afstand til dagligdagens behov. Dertil folkeskolen i Læringhuset, men flere fritidtilbud.

Et rummeligt hjem i et familievenligt område tæt på byen.

Billederne i denne annonce kan være fra lignende enheder og er kun til illustration. De repræsenterer stilen og kvaliteten af de tilgængelige enheder og kan variere i opbygning og detaljer.

Møblerne vist på billederne medfølger ikke. De skal give et indtryk af, hvordan rummet kan indrettes, men er ikke inkluderet i lejemålet.

Fakta

Denne ejendom er en del af
Type
Lejlighed
Størrelse
106 m2
Værelser
4
Parkering
Ja
Husdyr tilladt
Ja
Soveværelser
3
Etage
3
Elevator
Elevator tilgængelig
Personlig

Vores service, skræddersyet til dine behov

Enkelt

Vores brugervenlige platform gør udlejning enklere end nogensinde før

Hurtigt

Dit perfekte hjem er kun et klik væk

Find dit hjem