Havtornvej 13, 1. mf.

2640 Storkøbenhavn (Hedehusene)

11.250 kr. pr. måned

Ledig fra 1 oktober 2026

Reserveret
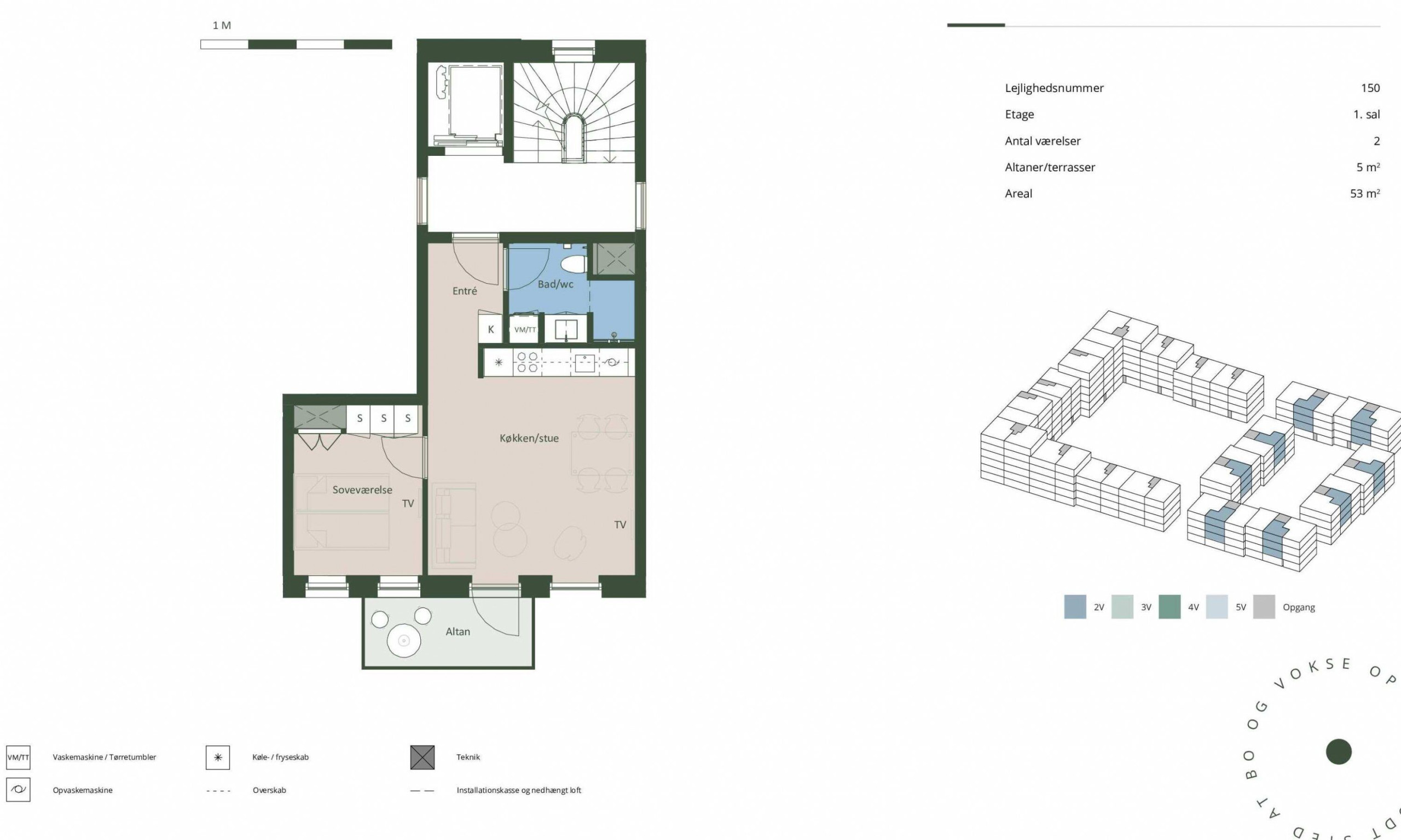
Lejlighed
53 m2
2 værelser
1 soveværelser
Del dette hjem

Lejevilkår

Opsigelse Løbende måned + 3 måneder
Yderligere vilkår Se husorden
Overtagelse fra 1 oktober 2026

Økonomi

Leje pr. md. 11.250 kr.
A conto varme 400 kr.
A conto vand 200 kr.
Depositum 33.750 kr.
Forudbetalt leje 11.250 kr.

Oplysninger om bygningen og området

2-værelses lejlighed i Birken i Hedehusene

Velkommen til Birken i Hedehusene, lyse og moderne lejligheder i et roligt område tæt på både natur og by.

De 2-værelses lejligheder har moderne køkken med hårde hvidevarer og vaskemaskine. Planløsningen er gennemtænkt og giver en funktionel bolig med plads til både ophold og afslapning.

Ejendommen Ejendommen er opført med fokus på kvalitet og komfort. Der er elevator, cykelparkering og grønne udeområder, som giver et behageligt nærmiljø.

Området Birken ligger tæt på Hedehusene Station, hvor lyntoget bringer dig til København på cirka 19 minutter. Der er gode indkøbsmuligheder, parker og grønne omgivelser, som gør området ideelt til både singler og par.

Et lyst og moderne hjem tæt på alt, du har brug for.

Billederne i denne annonce kan være fra lignende enheder og er kun til illustration. De repræsenterer stilen og kvaliteten af de tilgængelige enheder og kan variere i opbygning og detaljer.

Møblerne vist på billederne medfølger ikke. De skal give et indtryk af, hvordan rummet kan indrettes, men er ikke inkluderet i lejemålet.

Fakta

Denne ejendom er en del af
Type
Lejlighed
Størrelse
53 m2
Værelser
2
Parkering
Ja
Husdyr tilladt
Ja
Soveværelser
1
Etage
1
Elevator
Elevator tilgængelig
Personlig

Vores service, skræddersyet til dine behov

Enkelt

Vores brugervenlige platform gør udlejning enklere end nogensinde før

Hurtigt

Dit perfekte hjem er kun et klik væk

Find dit hjem